
Social lodgings in the 20th arrondissment
Located in Paris, but on the other side of the ring road, the lot for this project is at the junction between two antagonistic territories. How then can the fragility of the people accommodated be reconciled with the brutality of the site, creating an oasis of peace and tranquillity on the edge of the ‘Péripherique’. In short... the great divide.
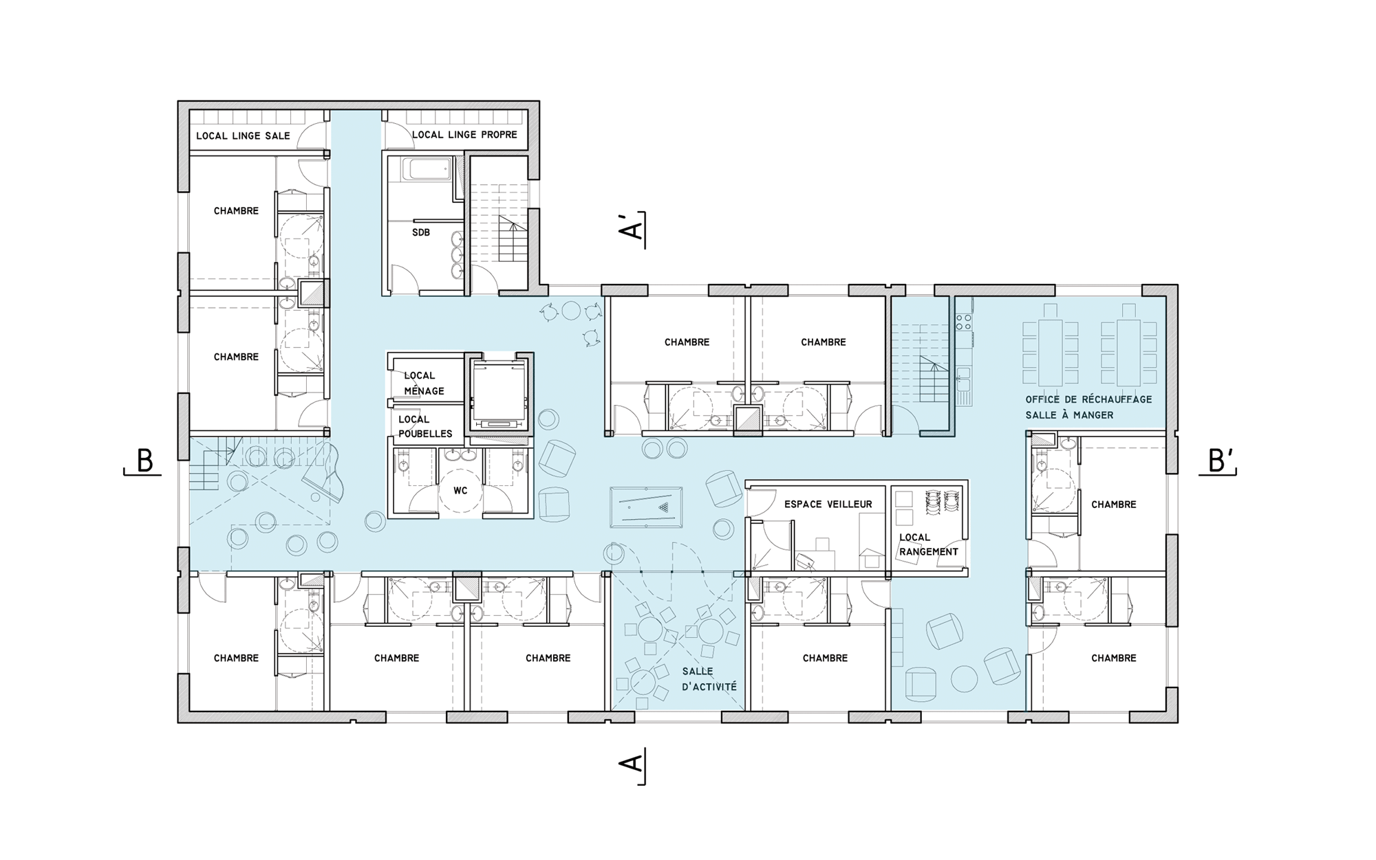
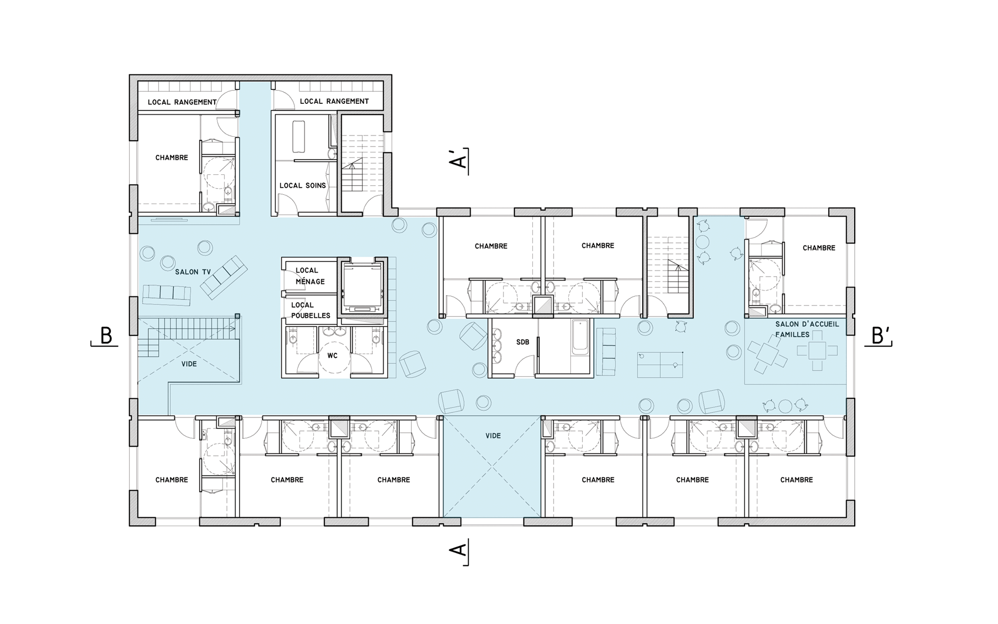
For this we have imagined a form of hybridisation between the Lilas urban fabric (a narrow plot of land in strips) and the metropolitan scale of Paris. The volumetry of the facilities is broken down into a series of vertical strips that are joined together. Tall houses stand along the two streets, allowing the emergence of a more domestic scale. Their façades will be covered with a lime plaster, sanded and lightly textured; each house will be given a particular pattern. Only the treatment of the ground floor differs: a wood cladding with a clear path covers all the spaces, integrating the recesses, the access doors and the garden fence. We have also paid particular attention to the in-between areas linking the more collective spaces and the living units. These are organised around small interior squares which are openings towards the façades and double heights visually linking the two levels of the same accommodation unit. The personalisation of the living quarters was made possible thanks to the great technical rigour of the project, which develops a perfect superposition of structures and technical installations. The interior layouts thus vary from one floor to another, drawing on the very source of the open plan.




Project
Construction of lodgings (36-bedroom and a 15-seat day care center)
Lieu
France, Paris 20e
Tender
Public
Surface
3 200 m²
Team
Projectiles, architect (project manager)
Evp ingénierie, structures engineering
B52, B.E. fluids engineering
Albert et Compagnie, environnement consultant
Bmf, construction economics
Client
Paris habitat - OPH
Stage
COMPETITION 2013
© Projectiles
© Projectiles
Share