
Associative nursery
The Small Ducks
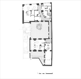
The Small Ducks nursery (Les Petits du Canard) is located on the ground floor of a recently refurbished residential building. It is divided into two distinct parts linked by a longitudinal gallery passage way.

The layout allows the different walkways to be naturally lit and to benefit from views of the street, the large inner courtyard and the rear garden. The general atmosphere of the spaces is uncluttered and neutral to ensure optimal brightness.
Furniture and games add colourful touches.
A square pattern of varying sizes can be seen on all the walls, ceilings and façade showcases. These squares house interior openings, soft and diffused lighting, notice boards and acoustic panels.






Project
Associative crèche with 33 cradles
Location
France, Paris 3e
Tender
Private contract
Surface
350 m²
Team
Projectiles, architect (project manager)
Albert et Compagnie, environmental consultant
Noble ingénierie, fluids engineering
Serge Titier, construction Economist
Client
Organization ‘Les Petits du Canard’
Stage
DESIGN IN PROGRESS 2009
CONSTRUCTION 2010
IN USE 2010
© Projectiles
© Vincent Fillon
Share