
La Coursive, Architecture and Heritage Interpretation Center

The environment of the project is ambivalent. On the one hand the high heritage dimension of the site through the imposing presence of the Château de Fougères. On the other, a more disparate urban fabric marked by different periods of construction. This reality constitutes quality for the establishment of a Centre for the Interpretation of Heritage(s). It reveals what characterises old towns: their historical sedimentation. Beyond the emergence of a new architectural model (as a marker of an urban signal) the challenge lies in the project's articulation with the public space.


The surrounding buildings, whatever their period of construction, are all characterised by their strong minerality.




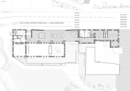
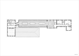
The sequences and objects of the collection are displayed between several buildings, in this case between the contemporary extension and the first floor of the ‘Maison de Quartier’. This approach tends to take advantage of the morphology of each space, as well as their relationship to the surrounding site, and offers variations in atmosphere that allow each theme to be characterised without compartmentalising them.





Thus, the urban heritage of Fougères is presented on the ground floor of the extension, in direct relation to the public space and the reception.




The working class memory and the sequences relating to the industrial development of Fougères are largely developed on the first floor of the extension, in a high volume reminiscent of a workshop.




Architecture
The environment of the project is characterised by a certain ambivalence. On the one hand, there is the highly patrimonial dimension of the site through the imposing presence of the Château de Fougères. On the other hand, along the Boulevard Jacques Faucheux, there is a more disparate urban fabric marked by different construction periods. This reality is not, however, a defect, but rather a quality for the establishment of a Heritage Interpretation Centre. It reveals what characterises old towns: their historical sedimentation.
The surrounding buildings, whatever their period of construction, are all characterised by their strong minerality. The thickness of the facades is linked to the few openings. This homogeneity in the materiality of the buildings is also found in the roofs, which are almost all covered with slate.
If we oversimplify, the description of the urban landscape could be summarised as follows: “stone buildings, with few openings and dark roofs”. Obviously, the reality is much more complex than it appears, but this instantaneous image, referring back to the essence of the constructional strata, allows us to start thinking about the contemporary part of the project.
From the ramparts of the Castle, the views over the city in general and the project site in particular convinced us of this observation and subsequently of the need to pay particular attention to the design of the extension in terms of the volumetry and ornamentations of all the facades, especially the roof.
The stone of the old buildings is matched by a textured, strong coloured, roughcast concrete. In a way, the implementation of this contemporary minerality reconciles change and continuity. This choice has as much to do with the project's place in the site as with the very purpose of this Interpretation Centre and the themes it presents.
The extension stands out clearly in the urban landscape through its monolithic appearance, without going against the adjoining buildings to which it is attached. The complementarity between these different materials will allow the buildings to enhance each other and create a coherent building ensemble.
The density of openings in the facade is identical from one building to another (it is around 15%). However, while they are uniformly distributed on the older buildings, the transparency is more concentrated on the ground floor of the extension. A very large opening is exposed on the main circulation axis and offers wide visual escapes between the reception area and the city.
Slightly raised from the pavement, its panoramic proportions echo the speed of vehicles and a more kinetic perception of the architecture. Two slight folds in the concrete frame this urban window and break up the lower level of the extension. On the south façade another large opening is made for the main entrance of the Interpretation Centre.
Scenography
The three main themes presented in this Interpretation Centre are complementary and inseparable. This common narrative is expressed through the emergence of a sober and elegant scenographic landscape, within which the visitor will instantly identify the different registers of presentation and mediation.
The sequences and objects of the collection are displayed between several buildings, in this case between the contemporary extension and the first floor of the ‘Maison de Quartier’. This approach tends to take advantage of the morphology of each space, as well as their relationship to the surrounding site, and offers variations in atmosphere that allow each theme to be characterised without compartmentalising them.
Thus, the urban heritage of Fougères is presented on the ground floor of the extension, in direct relation to the public space and the reception. The working class memory and the sequences relating to the industrial development of Fougères are largely developed on the first floor of the extension, in a high volume reminiscent of a workshop. Finally, literature and famous writers, including of course the tutelary figure of Jean Guéhenno, assume their place on the first floor of the ‘Maison de Quartier’, in a space on a more domestic scale, the feeling of which is more like being in a house.
Project
Creation of La Coursive, new Architecture and Heritage Interpretation Centre (Ciap's) in Fougères
Location
France, Fougères
Tender
Public
Surface
1 100 m²
Team
Projectiles, architect (project manager)
Wa75, graphic design
Tpfi, all trades engineering
Abraxas, lighting design
Adequat, construction Economics
Client
Ville de Fougères
Delivery
2025
© Projectiles
© Antoine Cardi
Awards & Distinctions
Architecture MasterPrize
Winner Best of the Best, “Architectural Design - Cultural Architecture” category, 2025
Articles
Actu.fr - may 2025
Ouest France - may 2025
Ouest France - september 2024
Le moniteur - july 2023
Journal des Arts - january 2023
Actu.fr - may 2021
Share