
Carnac Prehistory Museum


















Surveying the megalithic sites of Carnac made us feel the mystery that surrounds them. Confronting the territorial scale of the world's first monumental architectures is a striking experience. These erected minerals are symbolic constructions suggesting a crossing, an encounter, an elsewhere. Observing them is like returning to the sources of humanity's first marvels.
The fruit of a collective projection and a colossal effort over several millennia, the construction of these megalithic monuments is bound to raise questions about our ability to live together as a society today. The very idea of passing on and bequeathing to others is a truly generous one.
Our project was inspired by these visits and the notions we extracted from them, such as ground, verticality, limits, materiality and so on. By approaching them from the angle of complementary duality, which enabled us to define architectural registers that seem to oppose each other but in fact complement each other, we imagined a project with direct architecture and contrasting morphologies.
The project site, though complex due to its suburban setting, is a highly strategic location, marking the entrance to the town and providing an obvious interface between the various megalithic sites and the town center of Carnac. On an urban scale, the restoration of a moorland landscape, built around the effects of thresholds and perspectives, aims to reinforce this territorial resonance.
As the first institutional building visible on arrival from Auray, the museum asserts itself as an urban signal and rises to new heights. A large emergence stands out for its singular volumetry and evocative modenature. It is a sign of the area in which it stands, and of the collection it houses.
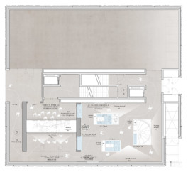
The immediate urban context implies abstraction, particularly in terms of the exhibition itinerary. Yet the museum does not turn its back on the city. A lower gallery, very open and active, has a lively, welcoming character. It brings together all the spaces dedicated to conviviality, education and work. Wrapping around the emergence and delimiting the educational garden, it spatially and symbolically places the collection and mediation at the heart of the museum.
Inside and out, materials make a statement. Instead of falsifying their architectural essence by concealing them behind added finishes, we focus on their intrinsic quality. The finishes are sometimes rough and expressive, as with the large raised stones of the emergence, and sometimes smooth and worked, like the solid oak assemblies of the scenographic furniture.
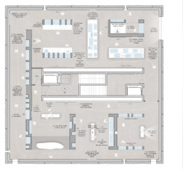
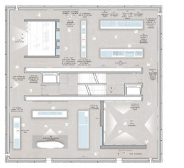
The permanent exhibition, spread over three levels, is literally crossed by the facsimile of the large engraved Locqmariaquer stele. Visitors can stroll around it in successive stages, confronting the human scale of their bodies with the majestic scale of this megalith.
Within the deliberately immersive scenography, the devices and furnishings are conceived as islands. In this way, the periphery of the spaces is opened up: multiple links are established in graphic and digital form with the past and present territory of Carnac and, more broadly, Morbihan.
In the last part of the tour, a large opening offers a new view of the Tumulus Saint-Michel. Visitors are reconnected with the present-day landscape and its exceptional history. An invitation to continue the journey...
Project
Carnac Prehistory Museum
Location
Carnac, France
Tender
Public
Surface
3250 m2
Team
Projectiles, lead architect and exhibit designer
Ocam, partner architect
Pollen, landscape designer
WA75, graphic designer
Lundi 8, medias designer
Abraxas, light designer
EVP, structural engineering
Albert & Compagnie, MEP & environnemental engineering
ACFI, electric & security system engineering
Bureau Michel Forgue, cost consulting
Altia, acoustique
Client
Ville de Carnac
Phases
Work in progress
Share