
Musée Lorrain de Nancy

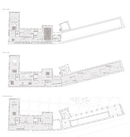
Le musée Lorrain de Nancy n’est pas un bâtiment, mais un territoire ou cohabitent des constructions d’âges variables. Cet ensemble articule différents tracés urbains, celui du moyen âge, de l’époque Stanislas et du 19è siècle, le tout autour d’un parc boisé. La nouvelle extension se place le long de ce cœur végétal, au milieu du système.


Elle intègre l’accueil du musée, les expositions temporaires et l’auditorium. L’ensemble du projet constitue une hétérogénéité assumée que nous qualifions de « ville-musée » où chaque édifice reflète une part de l’histoire de la ville, intègre une fonction spécifique ou présente un espace majeure caractéristique.



Le parcours est défini par la déclinaison de trois typologies de lieu : Les espaces classiques ou est déployée la majeure part de la collection, les séquences immersives marquant les grands événements historiques et les salons de médiation, véritable lieu d’accueil et de pédagogie. Configurer le paysage muséographique avec ces trois composantes apporte une réelle variation rythmique, participant à « la mise en relief » du parcours et de l’espace.



À l’échelle du territoire
Le musée Lorrain de Nancy possède une collection d’une grande diversité quantitative et qualitative, typologique et artistique. L’une des stratégies majeures du schéma directeur que nous proposons consisterait à placer le musée au cœur d’un réseau d’institutions lorraines afin de fédérer et renforcer la cohésion de l’offre culturelle de la région. Le musée Lorrain serait le centre d’une « toile culturelle », grâce à la diversité et à l’ampleur de sa collection, à la fois historique, sociétale et artistique.
Architectures
Le musée Lorrain de Nancy n’est pas un bâtiment, mais un territoire ou cohabitent des constructions d’âges variables. Cet ensemble articule différents tracés urbains, celui du moyen âge, de l’époque Stanislas et du 19è siècle, le tout autour d’un parc boisé. La nouvelle extension se place le long de ce cœur végétal, au milieu du système. Elle intègre l’accueil du musée, les expositions temporaires et l’auditorium. L’ensemble du projet constitue une hétérogénéité assumée que nous qualifions de « ville-musée » où chaque édifice reflète une part de l’histoire de la ville, intègre une fonction spécifique ou présente un espace majeure caractéristique.
Parcours muséal
Le parcours est défini par la déclinaison de trois typologies de lieu : Les espaces classiques ou est déployée la majeure part de la collection, les séquences immersives marquant les grands événements historiques et les salons de médiation, véritable lieu d’accueil et de pédagogie. Configurer le paysage muséographique avec ces trois composantes apporte une réelle variation rythmique, participant à « la mise en relief » du parcours et de l’espace.
Projet
Réhabilitation et Extension du musée Lorrain de Nancy
Marché
Marché Public
Lieu
Nancy, France
Surface
5400 m2 SHON
14500 m2 aménagement extérieur
Équipe
Ibos & Vitart, architecte mandataire
Projectiles, architecte des aménagements intérieurs et extérieurs muséographiques
Thierry Algrin, architecte ACMH
Autobus Impérial, signalétique
VP & Green, bureau d'études structure
Inex, bureau d'études fluides
Mazet & associés, économie de la construction
Luxigon & Arte Factory, images
Arte Factory, film
Maitre d'Ouvrage
Ville de Nancy
Phase
Concours restreint international en 2013
©Ibos & Vitart
©Projectiles
Partager ce projet