
Musée des Beaux-Arts et de la Céramique de Verviers
Oser démolir
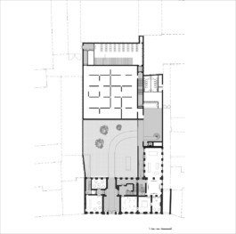
Le projet architectural de restauration de l’Hôtel de Biolley commence par une démolition ciblée de toutes les constructions et ajouts réalisés à de fins spéculatives aux XXème siècle. La section Beaux-Arts était initialement prévue dans le bâtiment existant de la carrosserie, pour les raisons précitées, nous proposons qu’elle soit abritée dans une nouvelle construction placée en fond de parcelle. Ce nouveau bâtiment dessine une cour. De cette manière, et en supprimant également les annexes qui lui sont directement accolés, la façade arrière de l’Hôtel est mise en valeur et trouve un répondant dans la nouvelle construction, une prolongation dont le plan, le gabarit et la façade entretienne une discussion formelle et typologique avec la construction classée. L’espace de connexion entre le neuf et l’ancien rassemble l’accueil du public, l’ascenseur et une circulation verticale importante. Situer les circulations du public à cet endroit permet de limiter les interventions dans le bâtiment patrimonial mais aussi de proposer aux visiteurs un parcours d’accès au Musée lui permettant de découvrir à la suite, le porche de l’Hôtel, la nouvelle cour réaménagée, la construction contemporaine et en écho la façade arrière de l’hôtel ainsi mise en valeur.








Projet
Restructuration de l'ancien Hôtel de Biolley en musée des Beaux-arts et histoire de la ville de Verviers en Belgique
Lieu
Belgique, Verviers
Marché
Public
Surface
3 000 m²
Équipe
Projectiles, architecte (co-mandataires)
V+, architecte (co-mandataires)
Bureau Bouwtechniek, OPC
Bureau Greisch, B.E. Tous Corps d’États
Maîtrise d'ouvrage
Ville de Bordeaux
Phases
CONCOURS 2012
© Projectiles
© V+
Partager ce projet