
Extension du National Cowgirl museum & Hall of fame
L’extension de la National Cowgirl Museum que nous avons conçue, s’inscrit le long du bâtiment existant, connecté à celui-ci par les deux niveaux.

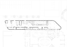
Nous avons situé l’extension intégrant le nouvel accueil du musée sur l’extrémité opposé à l’entrée actuelle. L’espace anciennement à l’arrière du bâtiment devient ainsi l’espace d’entrée des visiteurs. Le nouvel accueil fait face au Dickies Arena, s’implante en proue de l’extension, prolongé par un petit parc dont l’aménagement a été réadapté à la nouvelle configuration. L’extension propose également une nouvelle boutique et surtout de nouvelles espaces d’expositions.




La grande galerie au niveau supérieur est connectée aux espaces d’exposition existants, tout en ayant sa propre identité, renforcée par la présence d’un manège conçu spécifiquement pour le projet. Le manège est placé en proue du premier niveau en porte à faux sur l’entrée du musée. Elle est visible depuis Dickies Arena et le parc du musée depuis une grande baie vitrée. Elle fait ainsi l’élément signal de l’entrée du musée.
L’extension déployé en longueur, est un bâtiment en béton préfabriqué. Il est couronné sur toute sa périphérie, par une frise en bas-relief représentant la décomposition d’un cheval au galop dont l’inspiration vient des anciennes chronophotographies, notamment celles d’Etienne-Jules Maray.


La décomposition du mouvement transcrit en bas-relief a été un point complexe et délicat de la façade dont la mise en œuvre a nécessité plusieurs étapes de conception et de fabrication. Nous avons demandé à Eric Anton de l’atelier Arte FactoryLab, spécialiste d’images de synthèse, de créer un galop en décomposant les mouvements d’un quarter horse, d’abord filmé, puis vectorisé en 3D afin de créer les moules pour le coulage du béton.
Ensuite nous avons créé une série de prototypes à l’échelle une, afin de définir la bonne granulométrie, texture et couleur du béton. L’enjeu était d’avoir un béton avec une certaine présence minérale, une matérialité expressive, tout en gardant un maximum de détail du corps du cheval pour ne pas nuire à la beauté du mouvement.
Le cheval au galop couronnant l’édifice, représente un esprit, celui de la liberté et de la force, celui de la beauté et de la détermination.





Début de chantier en septembre 2025
Projet
Extension du National Cowgirl Museum & Hall of fame
Lieu
Forth Worth, Texas, USA
Marché
Privé
Surface
1 455 m2
Équipe
Projectiles, architecte (mandataire) + scénographe
Ewin Cole, architecte associé
Maîtrise d'ouvrage
National Cowgirl Museum
Phases
Chantier en cours
© Projectiles
© Arte Factoy Lab
Partager ce projet